︎
LA FÁBRICA DE ESCUELAS
︎
EL CATALIZADOR SOCIAL
︎
Nicolás Navarrete Carrasco
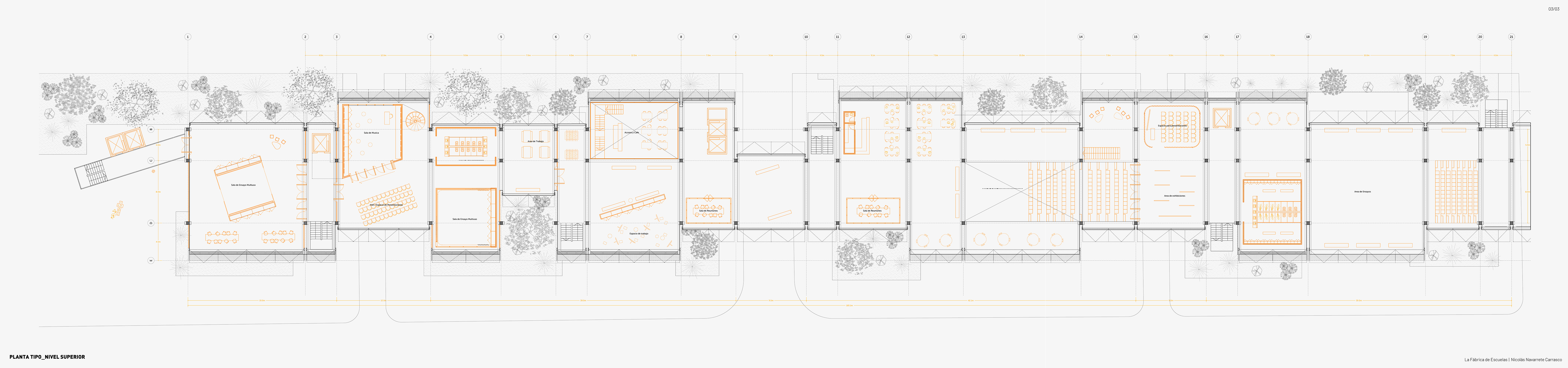
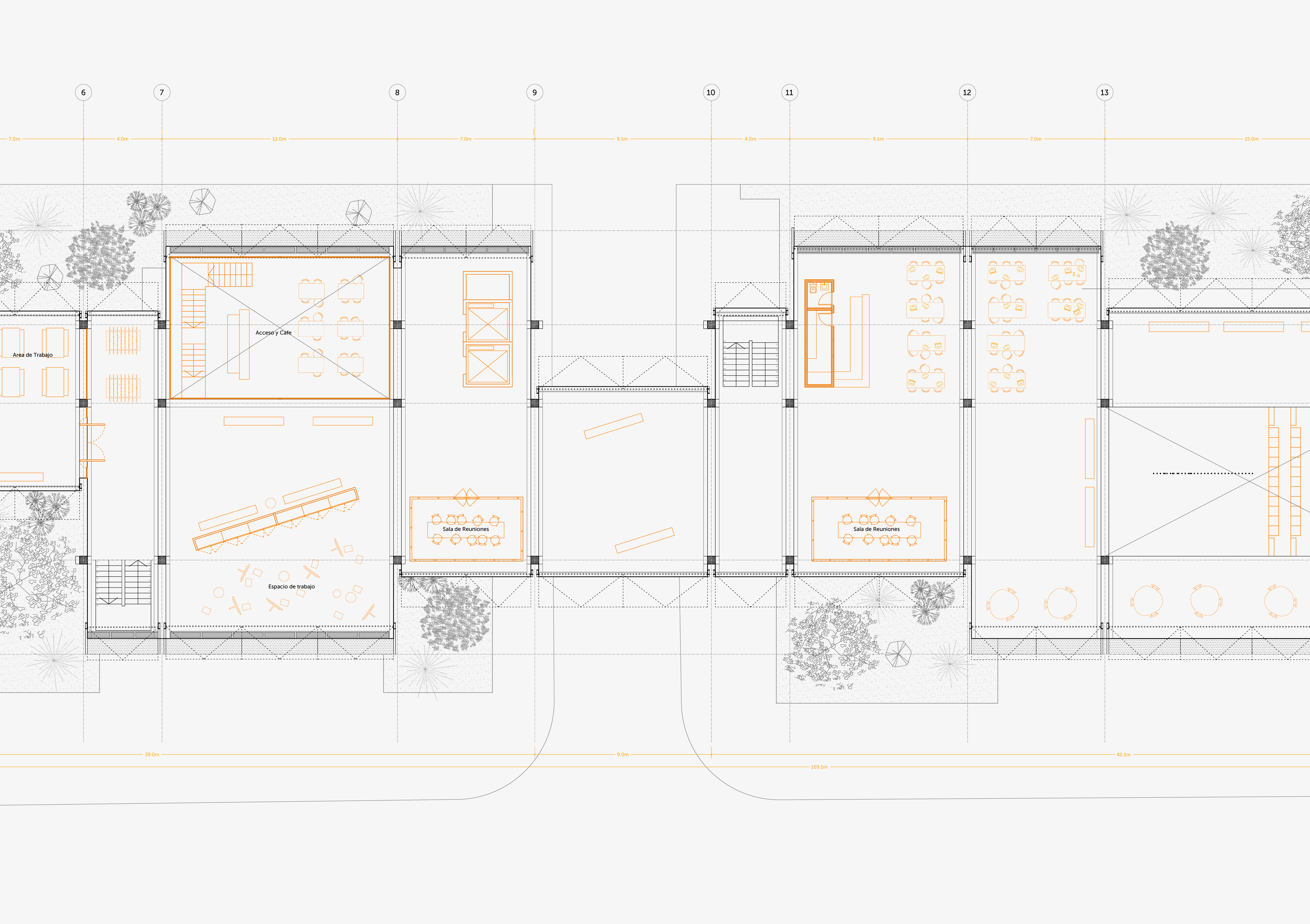
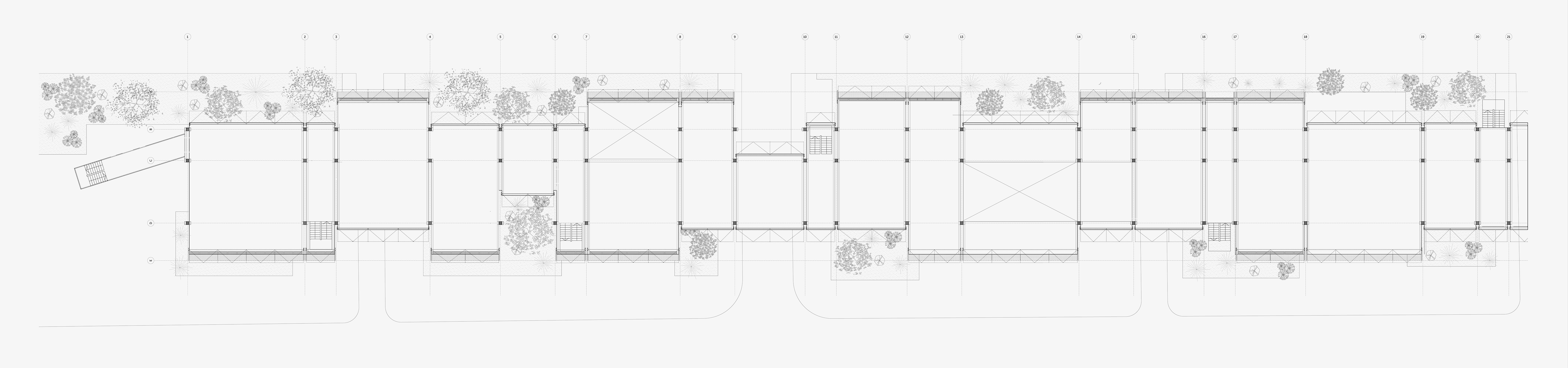
planta tipo